***Gepflegtes 4-Familienhaus mit Garten und Stellplätzen zur Kapitalanlage***

19 Fotos und Anhänge ansehen
Florian Ruppert Immobilien
Diebacher Straße 44c, 63549 Ronneburg
Florian Ruppert
Teilen

Hausansicht

Wohnzimmer EG

Balkon EG

Arbeitszimmer EG

Badezimmer EG

Küche EG

Flur EG

Wohnzimmer OG

Essbereich OG

Schlafzimmer OG

Balkon OG

Wohnzimmer DG

Essbereich DG

Badezimmer DG

Küche DG

Wohnzimmer Souterrain

Badezimmer Souterrain

Küche Souterrain

Zugang Souterrain

***Gepflegtes 4-Familienhaus mit Garten und Stellplätzen zur Kapitalanlage***

Eckdaten

  • Art Mehrfamilienhaus (Invest.)
  • Lage 63674 Altenstadt
  • Kaufpreis 745.000,00
  • Wohnfläche ca. 291
  • Grundstück ca. 398
  • Anzahl Wohneinheiten 4
  • Baujahr 1964
  • Gesamtfläche ca. 311
  • Etagenzahl 4
  • Denkmalschutzobjekt nein
  • Heizungsart Zentralheizung
  • Stellplatztyp Aussenstellplatz
  • Stellplatzanzahl 7
  • Garagenanzahl 1
  • Vermietet ja
  • Fahrzeit Hauptbahnhof 1 min
  • Fahrzeit nächste Autobahnauffahrt 4 min
  • Fahrzeit nächster Flughafen 35 min
  • Zustand Gepflegt
  • Immobilien-ID 161864744
  • Provision 5,95 % des Nettokaufpreises inkl. gesetzl. MwSt. inkl. MwSt.

Immobilie

Die Immobilie wurde im Jahre 1964 auf einem ca. 398 qm großen Grundstück in Altenstadt als 2-Familienhaus erbaut. 1995 wurde das Objekt aufgestockt, um eine weitere Wohnung zu schaffen. Heute umfasst die Immobilie insgesamt 4 Wohneinheiten mit ca. 291 qm-Wohnfläche verteilt auf 4 Etagen. Die Immobilie wurde in den vergangenen Jahren stetig renoviert und saniert. Alle Wohnungen sind in einem modernen Zustand. Zur Immobilie gehört ein Garten mit Gartenhaus sowie eine große Garage, die in eine Waschküche mit Abstellraum umgewandelt wurde. Vor der Liegenschaft befinden sich insgesamt 7 Stellplätze für die PKWs der Mieter.
Die Einheiten teilen sich wie folgt auf:
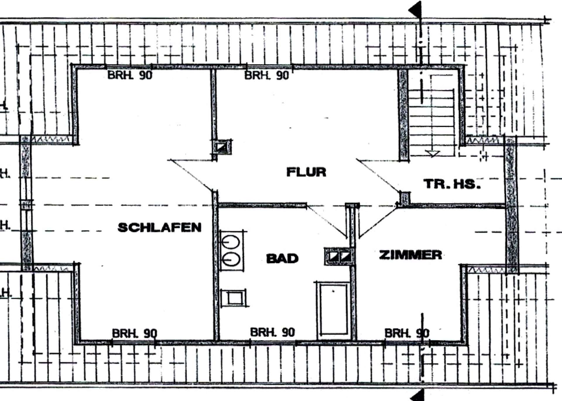
– EG: 3-Zimmerwohnung mit ca. 78 qm, Balkon, Bad, Küche, Flur und Abstellraum.
– 1.Obergeschoss: 3-Zimmerwohnung mit ca. 85 qm, Balkon, Küche, Bad, Flur, Abstellraum
– 2.Obergeschoss: 2-Zimmerwohnung mit ca. 63 qm, Balkon, Küche, Bad, Flur, Abstellraum
– Souterrain: 2-Zimmerwohnung mit ca. 65 qm, Küche, Bad, Flur, Abstellbereich, Garten
Die Wohnungen EG, 1. OG und 2. OG sind zurzeit vermietet. Die Wohnung im Souterrain ist leerstehend.
Im Jahre 2015 wurden für jede Einheit separate Zähler installiert, um eine konforme Abrechnung der Nebenkosten zu gewährleisten. In diesem Zuge wurde auch der Zählerschrank vollständig erneuert.

Lage

Die Immobilie befindet sich in einer ruhigen Seitenstraße von Altenstadt.
Altenstadt befindet sich am Rande der Wetterau zwischen Hanau, Büdingen und Friedberg.
Es liegt an der Bundesstraße 521 von Büdingen nach Frankfurt/Main und ist über die A 45 (Gießen – Hanau), Anschlussstelle Altenstadt, bestens angebunden.
Frankfurt, Offenbach, Hanau und der Frankfurter Flughafen sind somit schnell zu erreichen.
Ein Bahnhof sowie verschiedene Buslinien ermöglichen es Ihnen täglich, auch ohne PKW, an Ihr Ziel zu gelangen.

Einkaufsmöglichkeiten für den täglichen Bedarf finden Sie direkt vor Ort.
Auch Ärzte, Apotheken, Kindergärten und Schulen sind vorhanden. Für Freizeitmöglichkeiten ist ebenfalls gesorgt.
In Altenstadt gibt es Vereine für beliebige Aktivitäten, wie Fußball, Turnen oder Angeln aber auch Radwege, Wiesen und Wälder.

Ausstattung

– Baujahr 1964
– Aufstockung 1995
– 291 qm vermietbare Fläche
– 4 Einheiten
– Jede Einheit ein Balkon oder Freisitz
– Garten
– 7 Stellplätze
– Separate Waschküche
– Zentralheizung Pellets
– Verbrauchszähler erneuert
– Teilweise Fenster erneuert
– Bodenbeläge in den Wohnungen erneuert
– Teilweise Bäder erneuert
– Usw…

Vermietet

Sonstiges

Die Aufstockung 1995 erfolgte gemäß EnEV.

Gerne stehen wir für eine Besichtigung & Beratung zur Verfügung.

Sie können uns erreichen unter:
Florian Ruppert
Florian Ruppert Immobilien
Tel.: 0173-462 0 376
eMail: florian.ruppert@frimmobilien.de

Die Nachweis- bzw. Vermittlungsprovision in Höhe von 5,95% des Nettokaufpreises inkl. gesetzl. MwSt. ist zahlbar vom Käufer nach Abschluss des Kaufvertrages. Alle genannten Angaben zum Objekt stammen vom Verkäufer. Trotz kaufmännischer Sorgfalt kann hierfür nicht gehaftet werden.

Energieausweisangaben

A+
A
B
C
D
E
F
G
H
  • Enerigeausweistyp Bedarfsausweis
  • Energiekennwert 196 KWh(m²*a)
  • Energieeffizienzklasse F
  • Energieausweis erstellt am 16.06.2021
  • Energieausweis gültig bis 15.06.2031
  • Heizungsart Zentralheizung
  • Befeuerung / Energieträger Pellet

Grundrisse

Wie können wir Ihnen behilflich sein?

Herzlichen Dank für Ihre Anfrage.

Wir werden diese so schnell wie möglich bearbeiten.

Wie können wir Ihnen behilflich sein?
* Pflichtfeld